Seafront plot with 515sqm, located in Lavadores, in the Antiga Seca do Bacalhau area, Canidelo, Vila Nova de Gaia.
Located next to the Douro Estuary Viewpoint and Nature Reserve, it benefits from privileged views over the mouth of the Douro River.
Set within a subdivision of 17 villas, the plot allows for 350sqm of gross construction area and a maximum footprint of 242sqm.
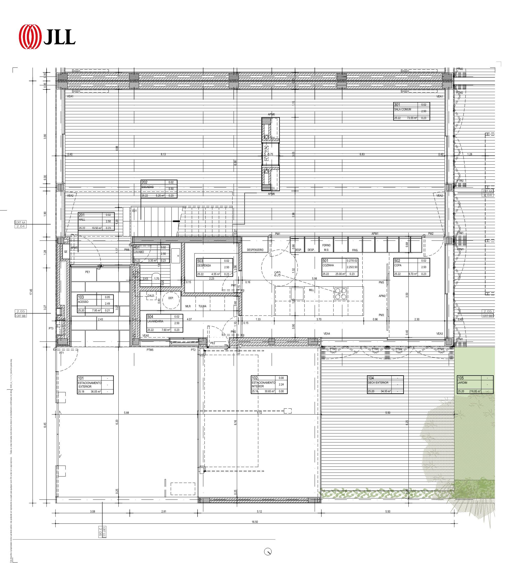
The project, now expired, was developed by architect Frederico Valsassina and envisaged a 3bedroom villa with three façades, spread over two floors, arranged as follows:
On the ground floor, a 74sqm living room, a 35sqm kitchen and breakfast area, pantry, laundry room, guest bathroom, and both outdoor and indoor parking for two cars. It also included a spacious deck and a 219sqm garden.
On the upper floor, two ensuite bedrooms with 21sqm each and a 50sqm master suite, including a landscaped terrace and an aromatic garden.
Located in a residential area, 2minutes’ driving distance from SãoPaio Park, Lavadores Beach and the Douro Estuary Local Nature Reserve, 15minutes from the centres of Vila Nova de Gaia and Porto, and 25minutes from Francisco Sá Carneiro Airport.
The information provided on this webpage has been obtained from sources believed reliable, this may be subject to errors, change of price, prior sale, or withdrawal without notice. Fine Luxury Property Ltd®, it’s partners and collaborators do not guarantee the accuracy of any information contained on our websites.





